Sky Deck 72 redefines commercial excellence in Ranchi with a bold, contemporary design by renowned architect Sanjay Puri. Thoughtfully positioned in one of the city’s most vibrant zones, it offers businesses the advantage of seamless connectivity and a refined working environment. With expansive layouts and floor-to-ceiling windows that invite natural light and offer panoramic city views, Sky Deck 72 is built for enterprises that aspire to grow, inspire, and stand out.
About SkyDeck 72 Commercial
Facility

Banquet Hall

Fully-equipped Gym

Yoga & Meditation Area

Private Movie Theatre

Indoor Games Room

Kids' Play Area

Landscaped Garden

24x7 Security & Surveillance
Spaces for Every Business

Basement Plan 02

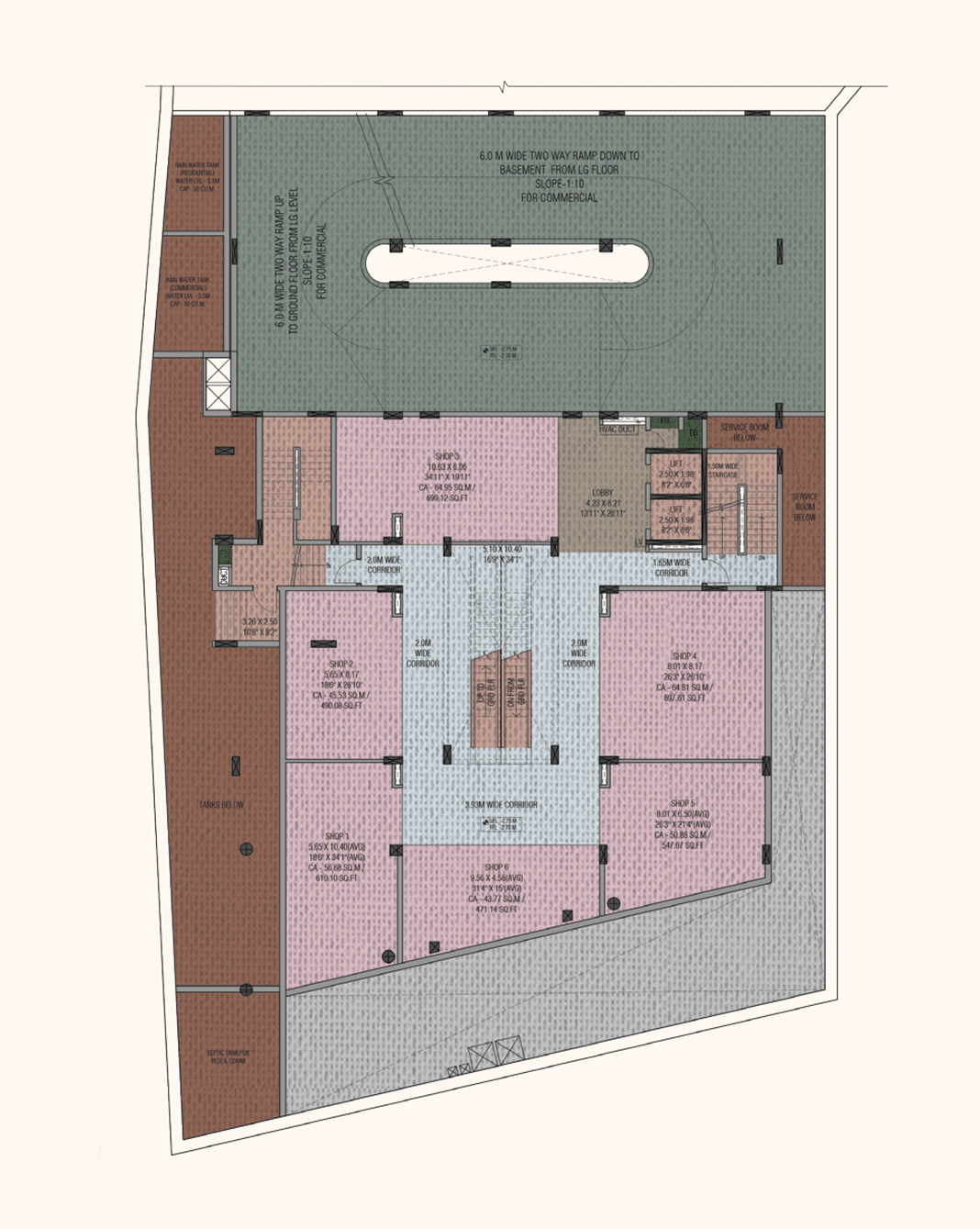
Lower Ground Floor Plan

Ground Floor Plan

First Floor Plan

Second Floor Plan

Third Floor Plan

Fourth Floor Plan






